Novel
The building is located on the most famous street of Porto – Santa Catarina. Santa Catarina is a street specialized in retail trade and it’s one of the most important commercial streets in downtown Porto. It’s a relatively straight street with a bit of a curve around the middle.

Near this house lived Camilo Castelo Branco. (16 March 1825 – 1 June 1890), was a prolific Portuguese writer of the 19th century, having produced over 260 books (mainly novels, plays and essays). His writing is considered original in that it combines the dramatic and sentimental spirit of Romanticism with a highly personal combination of sarcasm, bitterness and dark humour. He is also celebrated for his peculiar wit and anecdotal character, as well as for his turbulent (and ultimately tragical) life.
That is why we called our project “Novel”

The aim of our intervention was to restore the old building while preserving the original layout, using original aesthetic elements mainly on the facade. When you enter the building, you discover 5 design apartments, the architecture of which involves a combination of vintage features and modern design. The building also has a store, on the ground floor, licensed for restaurants and drinks.
As for the specific details of the renovation, we show you a brief description where you can feel our strong concern about quality.

Below is a list of apartments (we have attached architectural plants and some photos).

FEATURES:
1st floor — restaurant for 60 guests
2nd floor — 2 studio apartments
3rd floor — 2 studio apartments
4th floor — penthouse, ceiling height 3.7 m

Boutique Aparthotel
COMERCIAL AREA | RESTAURANT
FLOOR 0 | FRONT & BACK
AREA: 90m²
CAPACITY: 20-30 pax.
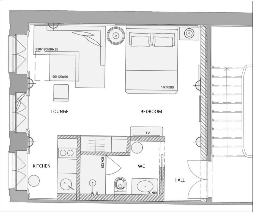
APARTMENT T0
FLOOR 1-2 | FRONT
AREA: 34.50m²
CAPACITY: 4 pax.
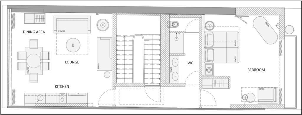
APARTMENT T1
FLOOR 1-2 | BACK
AREA: 40m²
CAPACITY: 4 pax.
APARTMENT T1
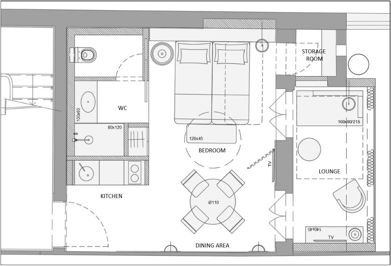
FLOOR 3 | FRONT & BACK
AREA: 80m²
CAPACITY: 6 pax
Apartment T0 | BEDROOM
Apartment T0 | BEDROOM
Apartment T0 | KITCHEN